














【東西線神楽坂駅から徒歩0分の駅近小劇場】演劇以外の利用も可。チケット売上シェアによる小屋代無料企画や、劇場主催企画多数あり
『東西線 神楽坂駅神楽坂出口』より、徒歩0分(40秒程)の所にある、超駅近小劇場です。
カフェのような秘密基地のようなオシャレな内装。ALLLEDの最先端の照明器具。(吊り替え不要)
演劇だけでなく、撮影、収録、ダンスやライブなどとしてもご利用いただけます。
メルシアーク神楽坂【merciaRK】
東京都新宿区矢来町 112番地第二松下ビル地下1階
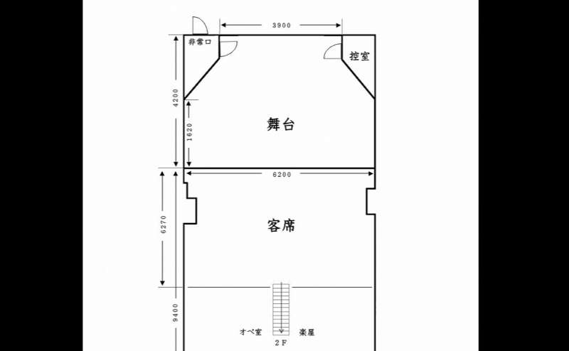
〈舞台・客席他〉
⚫舞台
間口620cm、奥行~420cm
⚫キャパ
椅子席+ベンチ席で45席~
椅子+ベンチ+桟敷 70席
立ち見を入れて~80人超
(参考数)
※感染症状況により変動致します
(2020年9月現在MAX20名前後)
⚫楽屋
常設2部屋、舞台上手奥1部屋
設備
料金・プラン
稽古・レッスン利用(平日)
稽古場としてご利用いただけるプランです。
(平日)
⚫1時間単位のレンタルです
⚫ご予約はご利用開始日の20日前より承ります
⚫ご利用についてはm.aRK規定の利用規約が適応されます
⚫照明音響機材、楽屋利用は含まれていません
(別料金により利用可)
※こちらのプランでは収益の発生する企画は行えません
※直前割はこちらのサイトでご予約いただいた場合のみ有効です
※営業時間は東京都指定の感染症対策における営業時間に準じます
07:00 - 00:00 | 2455円/1h |
稽古・レッスン利用(土日祝)
稽古場としてご利用いただけるプランです。
(土日祝)
⚫1時間単位のレンタルです
⚫ご予約はご利用開始日の20日前より承ります
⚫ご利用についてはm.aRK規定の利用規約が適応されます
⚫照明音響機材、楽屋利用は含まれていません
(別料金により利用可)
※こちらのプランでは収益の発生する企画は行えません
※直前割はこちらのサイトでご予約いただいた場合のみ有効です
※営業時間は東京都指定の感染症対策における営業時間に準じます
07:00 - 00:00 | 3546円/1h |
公演・イベント利用プラン(平日)
公演・イベントなど、収益の発生する企画でご利用いただけるプランです。(平日)
⚫1時間単位のレンタルです
⚫ご予約はご利用開始日の35日前より承ります
⚫ご利用についてはm.aRK規定の利用規約が適応されます
⚫照明音響基本機材利用料、楽屋利用料が含まれています(プランニング、オペ(PA)スタッフは含まれていません)
※直前割はこちらのサイトでご予約いただいた場合のみ有効です
※営業時間は東京都指定の感染症対策における営業時間に準じます
08:00 - 00:00 | 9546円/1h |
公演・イベント利用プラン(土日祝)
公演・イベントなど、収益の発生する企画でご利用いただけるプランです。(土日祝)
⚫1時間単位のレンタルです
⚫ご予約はご利用開始日の35日前より承ります
⚫ご利用についてはm.aRK規定の利用規約が適応されます
⚫照明音響基本機材利用料、楽屋利用料が含まれています(プランニング、オペ(PA)スタッフは含まれていません)
※直前割はこちらのサイトでご予約いただいた場合のみ有効です
※営業時間は東京都指定の感染症対策における営業時間に準じます
08:00 - 00:00 | 11819円/1h |
利用規約・キャンセル規定
⚫ご利用の際はm.aRK規定の利用規約が適用されます。(詳細はお問い合わせください)
⚫m.aRK規定の感染症対策にご協力ください
- 当日〜 45 日前まで 100 %