
























-
最寄駅
- 明治神宮前〈原宿〉駅 徒歩3分 ( 東京メトロ副都心線 )
- 明治神宮前〈原宿〉駅 徒歩5分 ( 東京メトロ千代田線 )
- 原宿駅 徒歩5分 ( JR山手線 )
-
住所
-
定員人数
~4人 -
広さ
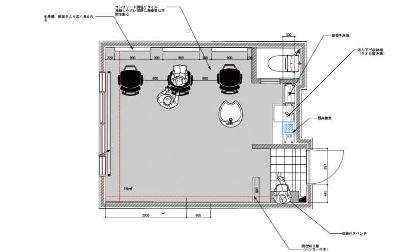
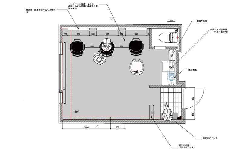
15㎡ -
お支払い方法
クレジットカード / 銀行振込 -
利用用途
▼スペース概要
・ヘアメイク・エステ・撮影 - 面貸しをしています。
・リノベーションしたばかりの新しい店内です。
・ソーシャルディスタンス型のオープンスペースでゆったりとサロンワークできます! ヘアメイク、スタイリスト、セラピストの方にご愛用いただいています。
・面貸し セット面3席
・原宿駅から徒歩3分、明治神宮前駅から徒歩3分、北参道駅から徒歩7分
・スペース利用者による持込み材料。
・撮影用の白い壁になっておりますので、撮影場所としても使うことができます。
・1日貸し出しも可能です。
※その他も可能な限りご対応いたしますので、ご相談ください!!
!!ご注意ください!!
シャンプー台は現在ご使用不可となっておりますので、ご注意願います。
※簡易な設備のため本格的な使用には向いておりません。
またシャワーヘッドが緩いため、現在ご利用頂けません。
※禁止しているにもかかわらず、シャンプー台ご利用の場合は別途ご請求させていただくことがございます。
<設備・サービス>
・セット面 3席
・椅子 3脚
・トイレ
・ドライヤー
・シャンプー台 1台 (現在ご利用不可)
※簡易な設備のため本格的な使用には向いておりません。またシャワーヘッドが緩いため、現在ご利用頂けません。
簡易であることをご理解の上、ノークレームでお使いいただける場合はご利用も可能ですが、メインの貸出設備ではありませんのでご注意下さい。
シャワーご利用に関するトラブル防止のため何卒ご理解下さい。
<材料使用ルール>
施術者がお持ち込みください
<施術料金設定ルール>
料金設定は自由です
屋外に駐輪スペースはありませんが、自転車は店内においていただけます。
料金・プラン
【1時間単位プラン】面貸しプラン(3面スペースサロンまるごと占有貸し)
NINJA 竹下通り面貸しプライベートサロン【1時間単位プラン】面貸しプラン(3面スペースサロンまるごと占有貸し)
00:00 - 00:00 | 3003円/1h |
【3時間パック】で1時間1836円(税抜き)!(3面スペースサロンまるごと占有貸し)<レビュー必須>OPEN特別価格♪
NINJA 竹下通り面貸しプライベートサロン 【3時間パック】で1時間1836円(税抜き)!(3面スペースサロンまるごと占有貸し)
00:00 - 00:00 | 1927円/1h |
【5時間パック】で1時間1151円(税抜き)!(3面スペースサロンまるごと占有貸し)<レビュー必須>OPEN特別価格♪
NINJA 竹下通り面貸しプライベートサロン 【5時間パック】で1時間1151円(税抜き)!(3面スペースサロンまるごと占有貸し)
00:00 - 00:00 | 1208円/1h |
アクセス
東京都 渋谷区 神宮前1丁目 8-24 175番館別館302号室
周辺の駅からのアクセス
- 明治神宮前〈原宿〉駅 徒歩3分 ( 東京メトロ副都心線 )
- 明治神宮前〈原宿〉駅 徒歩5分 ( 東京メトロ千代田線 )
- 原宿駅 徒歩5分 ( JR山手線 )
利用規約・キャンセル規定
※※注意事項※※
1) 騒音にご注意下さい。
近隣テナントよりクレームが入ることがございます。ご配慮の上ご利用下さい。
2)ドアの開け間違えにご注意下さい。
当店は302号室
NINJAです。
3)大きな音楽はご遠慮下さい。
当面ご利用人数を4名までとさせていただきます。
何卒ご了承下さい。
◆ご利用にあたって、下記をお守り下さい。
・ ご予▼周辺情報 ・隣コインパーキング ・駐輪場なし/駐車場なし
▼収容人数 ・最大4人
▼営業時間
・全日 24時間利用可能
▼定休日
・なし
▼利用用途
・撮影会 ・講習会 ・フリーランスへの面貸し ・ロケ etc
▼注意事項 近隣住民への配慮のため下記の行為は禁止です。
・スペース外での迷惑となる行為
・スペースの汚損、破損
・ごみは各自でお持ち帰りください。
・転貸禁止約頂いた利用時間内での入退室
・ ゴミのお持ち帰り、退出5分前の掃除機、雑巾がけ
・ 定員以内でのご利用
※当サロンは事務所としても使用しておりますので
ダンボールに入った書類などの
事務所の備品等がおいてございますが、
ご理解下さい。
備品があることによるクレームはお受けしかねますのでご了承下さい。
- 当日〜 前日まで 100 %
- 2 日前〜 3 日前まで 75 %
- 4 日前〜 10 日前まで 50 %
- 11 日前〜 30 日前まで 10 %