
























-
最寄駅
-
住所
-
定員人数
~30人 -
広さ
132㎡ -
お支払い方法
クレジットカード / 銀行振込 -
利用用途
▼スペース概要・コンセプト
【神奈川県横浜市旭区】TBSやフジテレビ、テレビ朝日等で『ドラマや映画のロケ』としても使用されている2階建て1軒家のハウススタジオ!
和室のある4LDKの家を貸し切りで使用できるレンタルスペース!
ドラマ、映画等の商業撮影、YouTube等の動画撮影、イベント、パーティー、女子会等幅広い使用ができるおすすめの物件です!
▼利用用途
・ドラマの撮影、映画撮影、CM撮影、ロ ケ撮影、商業撮影
・YouTubeの動画撮影
・ポートレート撮影、コスプレ撮影
・会議、打ち合わせ、ミーティング、
・女子会、ママ会、パーティー、イベント、歓送迎会
・工作、ワークショップ、ヨガ、運動
・セミナー、勉強会、学習塾等の教室
▼フロア構成・建物情報
2階建て1軒家/4LDKを貸切でご利用いただけます。
広さ:約40坪(132㎡)
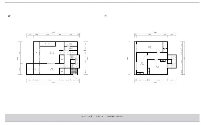
▼間取り
1階:和室6帖・ダイニングキッチン12帖・トイレ・庭
※浴室もありますが、利用できません。
※ガスは契約していませんので、キッチンのガスコンロ、お湯は利用できません。
2階:洋室8帖・洋室8帖・洋室6帖・トイレ・ベランダ
※洋室6帖の部屋にはエアコンがありません。
駐車スペース:1台分(オプションでの貸し出しとなります。料金のページをご確認下さい。)
※事前にご相談がないと使用できません。(使用できない場合は、近隣のコインパーキングをご利用下さい。)
▼収容人数
最大30名程度
▼営業時間
9:00~20:00
▼周辺情報
・セブンイレブン(コンビニエンスストア):徒歩5分
・ファミリーマート(コンビニエンスストア):徒歩5分
・Big-A~ビック・エー~(スーパーマーケット):(徒歩5分)
・ハックドラッグ(ドラックストアー):徒歩5分
・龍泉寺の湯(温泉施設):徒歩12分
・旭台中央公園:徒歩5分
・コインパーキング:徒歩5分
▼注意事項
近隣住民への配慮のため、下記の行為は禁止です。
お守りいただけない場合、当日のご利用を中止、また罰金をいただく場合もございます。
・スペース外(入り口付近や共用部等)で・大声を出して騒ぐ・暴れること
・スペースの汚損、破損行為、備品の持ち出し等
・当日出たゴミを無断で置いて帰ること
※ゴミの処分はオプションとなります。
・施設内、施設の周りを含め、禁煙となっています。
▼インターネット
WI-FI(無線LAN)は契約していませんので、各自のモバイルでお願いします。
▼利用実績
【商業撮影】
・ドラマの撮影
・再現ドラマの撮影
・映画の撮影
・企業VP
【一般利用】
・読書会
・地域のイベント
・ワークショップ
・サークル活動
・パーティー、女子会、ママ会、同窓会
・YouTubeの動画撮影
・ポートレート撮影
【その他】
・学習塾
・大学、大学院の映画撮影
等で使用されています。
▼備品・サービス
【無料貸し出し】
・3名掛け机 :7台
・パイプ椅子:40脚
・冷蔵庫(92L、冷蔵のみ):1台
・空気清浄機:1台
・電気ケトル:1台
・電気ポット:1台
・電子レンジ:1台
・トースター:1台
・電気コンロ:1台
・キッチン用品一式
・食器類一式
・おもちゃ等の共有備品
・ブランケット:3枚
・延長コード:4個
【有料貸し出し】
・プロジェクター:1回/800円 機種ー「EPSON EB-S04」(リモコンやケーブル等も完備。)
・プロジェクタースクリーン:1回/200円 サイズー「60インチ」
等をお使いいただけます。
設備
料金・プラン
【基本プラン】
【基本料金】
(9時~20時)
※非営利団体、個人、営利団体(商業撮影を除く)等の利用料金となります。
09:00 - 20:00 | 2100円/1h |
【4時間利用パック】
【4時間利用パック】
(9時~20時)
※最低利用時間:4時間
※非営利団体、個人、営利団体(商業撮影を除く)等の利用料金となります。
09:00 - 20:00 | 2000円/1h |
【1日利用】
【1日利用】
(9時~20時)
※最終利用時間:20時(完全撤収)
※非営利団体、個人、サークル活動等の利用料金となります。
09:00 - 20:00 | 13000円/1h |
【延長料金】
【延長料金】
(最終利用は20時まで)
※30分延長の価格です。
※非営利団体、個人、営利団体(商業撮影を除く)等の利用料金となります。
09:00 - 20:00 | 1150円/1h |
【ロケ等の商業撮影 「スチール」】
【ロケ等の商業撮影 「スチール」】
(撮影時間:9時~20時)
09:00 - 20:00 | 12000円/1h |
【ドラマ、CM等の商業撮影 「ムービー」】
【ドラマ、CM等の商業撮影 「ムービー」】
(撮影時間:9時~20時)
09:00 - 20:00 | 13000円/1h |
下見
60分以内でお願いします。
09:00 - 20:00 | 800円/1h |
利用規約・キャンセル規定
●施設内での注意点
・施設内は土足厳禁となっています。
・施設内、施設外(庭、玄関先等)含め、すべて禁煙となっています。
・施設では火気厳禁となっております。
・騒音となる行為は固くお断りしています。
・施設外(入口付近や共用部分等)で大きな声での電話、騒ぐ、暴れること等はご遠慮下さい。
・近隣の方に迷惑がかかるような行為はしないように十分配慮をお願いします。
・施設内で物損等が起こった場合には、速やかにお知らせ下さい。状況により設備や器物の破損に対して相応の弁償をしていただく場合がございます。
・規約に反する行為があった場合には即刻、退出していただきます。その際の利用料金の返金はいたしません。
・移動したり、使用したりした設備、備品等は退出時に必ず元の場所に戻して下さい。
・ゴミは必ずお持ち帰り下さい。
※ゴミの処分に関してはオプション料金1000円で承ります。(粗大ごみとなる大きな物は不可、)
・電気の契約は60Aです。
・ガスは使用できません。
・終了後は必ず清掃、窓の戸締りをお願いします。
- 当日〜 前日まで 100 %
- 2 日前〜 3 日前まで 75 %
- 4 日前〜 10 日前まで 50 %
- 11 日前〜 30 日前まで 10 %