
























★テレワーク★日帰り利用★時間貸し★
※お気軽にご相談下さいませ
フィルムスタジオ「iidayajapan」「ロケタウン飯田屋」
京都風の日本庭園と古民家が、都心からすぐ。竹林を抜けるとそこには日本庭園が広がります。広大でプライバシーが保たれています。春には大きな桜、その下には石橋がかかり色取り取りの錦鯉が泳ぎます。庭園では四季折々の花々がお客様をお迎え致します。大切なお仲間と素敵なお時間をお過ごし下さい。
★過去使用例★
コスプレ 撮影会
映画、ドラマ撮影
CM撮影
広告、雑誌撮影
ツアー会社での御利用
大使館レセプションパーティー
企業様の合宿や会議
大学院のプレゼン会場
披露宴、前撮り、顔合わせ
同窓会
御茶会
各種教室
数家族での集まり
BBQ
流し素麺体験
サプライズバースデー
サプライズプロポーズ
※レビューも御参照下さいませ、ご好評を頂いております。楽しい伝統的なアクティビティも御用意ございます、何なりとお気軽にご相談下さいませ。
25人以上が宿泊できる、美しい日本庭園に佇む伝統的な古民家です。映画やドラマ、コマーシャル、雑誌の撮影、披露宴や前撮りでもご利用頂いております。
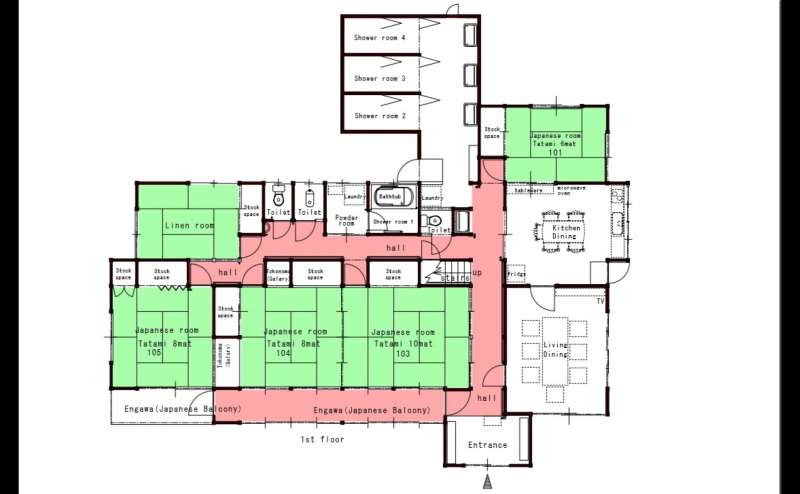
大型ホワイトボードやプロジェクターもレンタル頂けます、会議や合宿、同窓会や各種教室、イベント等にもご利用頂いております。バスやレンタカーの御手配も承っております。寝室が7部屋、シャワルームが4つ(1つはバスタブ付き)、トイレが4つ完備しております。縁側に皆で座って並び、お茶やお酒を呑みながら美しい日本庭園をお楽しみ頂けます。建物は快適にリノベーションされており、冷暖房完備で浴室もリニューアルされています。
日本庭園ではBBQや、本物の竹組流しソーメンをお楽しみ頂けます。
※17名様以上の場合も追加料金がかかります。
※施設利用人数料金になりますので、ご宿泊されずに施設をご利用されるお客様も必ずお知らせ下さいませ。
※乳児やお子様も大人と同額の御料金になります、バンボ(幼児イス)のご準備を致しますので、お知らせ下さいませ。
※布団が24セット、ソファーベッドが1セット、寝具は合わせて25名様分迄のご準備となります。広さ的には寝室だけで54畳ありますので、26名様以上でも滞在可能ですが、人数は必ず事前にご相談下さいませ。
設備
料金・プラン
テレワーク、会議、事務作業のみ
★完全な貸切りとなります★
※7名様迄のプランです。8名様以上の際には、リクエストの前に、メールでご相談下さい。お1人様1時間あたり、追加料金:500円が別途かかります
換気、通風が非常に良いです。
大きな開口部を全て開放すれば、
日本庭園と一体の、
半外として利用可能。
庭園での屋外活動も可能
個室7部屋、トイレ3部屋、リビングルーム、キッチン完備
・セルフチェックイン
・セルフチェックアウト
06:00 - 22:00 | 9091円/1h |
スチール撮影(アマチュア)、コスプレ※商用撮影は別プランを選択して下さい
★完全な貸切りとなります★
※7名様迄のプランです。8名様以上の際には、リクエストの前に、メールでご相談下さい。お1人様1時間あたり、追加料金:500円が別途かかります
換気、通風が非常に良いです。
大きな開口部を全て開放すれば、
日本庭園と一体の、
半外として利用可能。
庭園での屋外活動も可能
個室7部屋、トイレ3部屋、リビングルーム、キッチン完備
・セルフチェックイン
・セルフチェックアウト
06:00 - 23:00 | 13637円/1h |
利用規約・キャンセル規定
◆ご利用にあたって、下記をお守り下さい。
・ ご予約頂いた利用時間内での入退室
・ ゴミのお持ち帰り、退出5分前の掃除機、雑巾がけ
・ 定員以内でのご利用
- 当日〜 前日まで 100 %
- 2 日前〜 3 日前まで 100 %
- 4 日前〜 10 日前まで 100 %
- 11 日前〜 30 日前まで 100 %